
El dúplex de la imprenta | Sabadell, Barcelona. 2022 | Superficie: 188 m2 (2024 ft2) | Diseñado por Nada. | En colaboración con Manel Larrosa y Albert Clavé. | Fotografiado por Sandra Rojo. | Nominado por German Design Award 2024.
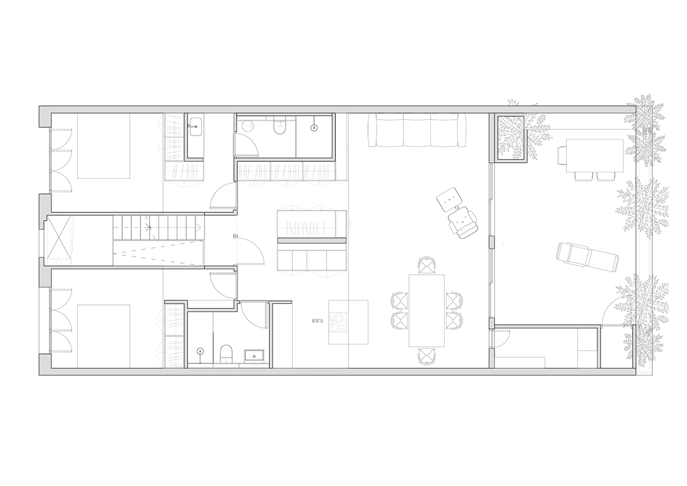
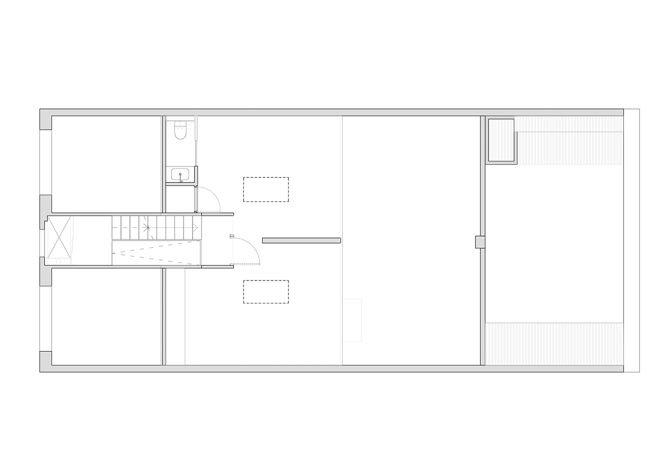
Transformación de una antigua imprenta de Sabadell en un dúplex | Este proyecto se ubica en un edificio de tres plantas de altura construido a principios de los años 20 para albergar una imprenta. Tras el cierre de ésta y varios cambios de uso poco documentados, en los años 60 se construyen oficinas en la planta baja y la primera planta y dos viviendas simétricas en la segunda planta. | Dichas viviendas habían quedado anticuadas y necesitaban una urgente actualización. Es en este momento cuando llega la pandemia y la propiedad decide replantear los usos del edificio para adecuarlos mejor a la nueva realidad y a sus nuevas necesidades. Entonces decide intervenir los dos apartamentos para construir su nueva vivienda y un estudio. | Una vivienda zen donde fluye la luz. | La clienta necesitaba un espacio amplio, lleno de luz natural, conectado con el exterior y sin nada que provocase la mínima estridencia. En definitiva, aspiraba a un espacio sosegado, donde meditar y descansar, pero también donde recibir visitas, trabajar y dar rienda suelta a su pasión: la pintura. | Con estas premisas, el estudio Nada ha unido las dos viviendas en una sola y ha construido un nuevo nivel y una gran terraza. | Para ello, se ha tenido que derribar la antigua escalera para encajar una gran estructura de acero que contiene la nueva escalera y un ascensor. Además, se ha aprovechado la altura que antes se perdía bajo la cubierta a dos aguas para generar un nuevo nivel con entrada independiente a la de la vivienda y que contiene un despacho, un aseo y un estudio de pintura. | En la planta de la vivienda, la distribución es centrífuga a partir de una pieza central que contiene parte de la cocina y almacenamiento. La luz no se obstaculiza por ningún elemento desde los huecos de fachada de los dormitorios, hasta los grandes ventanales de la terraza en el salón. El resultado son espacios con ventilación cruzada y llenos de luz natural. | En esta misma planta, encontramos dos dormitorios dobles y dos baños completos, un lavadero, una cocina disgregada en tres piezas, mucho almacenamiento y un gran salón-comedor a dos alturas que conecta con el nivel superior mediante grandes cristaleras. Además, mediante el derribo de antiguos lavaderos y cocinas, se ha ganado un gran espacio exterior totalmente abierto al salón. | Asimismo, dormitorios y salón disfrutan de doble altura, mientras que todos los espacios de servicio como el distribuidor, la cocina, los baños y el almacenaje quedan comprendidos en una altura más íntima bajo el nuevo altillo creado. | Madera, pocos muebles y mucho arte. | La materialidad responde al interés por los espacios zen de la clienta y los materiales de origen noble y natural. De hecho, toda la caja es blanca y está contrastada con madera en el pavimento, cerramientos exteriores y el escaso mobiliario. | La nota de color viene dada en los baños, que se han revestido con cerámica verde que recuerda la naturaleza y llena de vida los espacios más oscuros de la vivienda. También se han instalado grandes espejos que amplían el espacio y juegan con la perspectiva. | En la caja de escalera, sin embargo, se han conservado los paramentos originales llenos de cicatrices y materiales constructivos que explican diferentes épocas y el pasado del edificio. | No podían faltar seleccionadas y exquisitas obras de arte, fruto de la pasión de la propiedad por la pintura. Se han seleccionado de su colección sólo unas pocas piezas que aportan un punto de sensibilidad a cada uno de los espacios. Éstas comprenden obra original del artista sabadellense Agustí Puig y de Alfons Borrell, así como litografías de Miró en el salón y de Tàpies en la cocina.





















Publicaciones | Revista AD - Architectural Digest España | Elle Decor: ES | IT
El dúplex de la imprenta | Sabadell, Barcelona. 2022 | Superficie: 188 m2 (2024 ft2) | Diseñado por Nada. | En colaboración con Manel Larrosa y Albert Clavé. | Fotografiado por Sandra Rojo. | Nominado por German Design Award 2024.
Transformación de una antigua imprenta de Sabadell en un dúplex | Este proyecto se ubica en un edificio de tres plantas de altura construido a principios de los años 20 para albergar una imprenta. Tras el cierre de ésta y varios cambios de uso poco documentados, en los años 60 se construyen oficinas en la planta baja y la primera planta y dos viviendas simétricas en la segunda planta. | Dichas viviendas habían quedado anticuadas y necesitaban una urgente actualización. Es en este momento cuando llega la pandemia y la propiedad decide replantear los usos del edificio para adecuarlos mejor a la nueva realidad y a sus nuevas necesidades. Entonces decide intervenir los dos apartamentos para construir su nueva vivienda y un estudio. | Una vivienda zen donde fluye la luz. | La clienta necesitaba un espacio amplio, lleno de luz natural, conectado con el exterior y sin nada que provocase la mínima estridencia. En definitiva, aspiraba a un espacio sosegado, donde meditar y descansar, pero también donde recibir visitas, trabajar y dar rienda suelta a su pasión: la pintura. | Con estas premisas, el estudio Nada ha unido las dos viviendas en una sola y ha construido un nuevo nivel y una gran terraza. | Para ello, se ha tenido que derribar la antigua escalera para encajar una gran estructura de acero que contiene la nueva escalera y un ascensor. Además, se ha aprovechado la altura que antes se perdía bajo la cubierta a dos aguas para generar un nuevo nivel con entrada independiente a la de la vivienda y que contiene un despacho, un aseo y un estudio de pintura. | En la planta de la vivienda, la distribución es centrífuga a partir de una pieza central que contiene parte de la cocina y almacenamiento. La luz no se obstaculiza por ningún elemento desde los huecos de fachada de los dormitorios, hasta los grandes ventanales de la terraza en el salón. El resultado son espacios con ventilación cruzada y llenos de luz natural. | En esta misma planta, encontramos dos dormitorios dobles y dos baños completos, un lavadero, una cocina disgregada en tres piezas, mucho almacenamiento y un gran salón-comedor a dos alturas que conecta con el nivel superior mediante grandes cristaleras. Además, mediante el derribo de antiguos lavaderos y cocinas, se ha ganado un gran espacio exterior totalmente abierto al salón. | Asimismo, dormitorios y salón disfrutan de doble altura, mientras que todos los espacios de servicio como el distribuidor, la cocina, los baños y el almacenaje quedan comprendidos en una altura más íntima bajo el nuevo altillo creado. | Madera, pocos muebles y mucho arte. | La materialidad responde al interés por los espacios zen de la clienta y los materiales de origen noble y natural. De hecho, toda la caja es blanca y está contrastada con madera en el pavimento, cerramientos exteriores y el escaso mobiliario. | La nota de color viene dada en los baños, que se han revestido con cerámica verde que recuerda la naturaleza y llena de vida los espacios más oscuros de la vivienda. También se han instalado grandes espejos que amplían el espacio y juegan con la perspectiva. | En la caja de escalera, sin embargo, se han conservado los paramentos originales llenos de cicatrices y materiales constructivos que explican diferentes épocas y el pasado del edificio. | No podían faltar seleccionadas y exquisitas obras de arte, fruto de la pasión de la propiedad por la pintura. Se han seleccionado de su colección sólo unas pocas piezas que aportan un punto de sensibilidad a cada uno de los espacios. Éstas comprenden obra original del artista sabadellense Agustí Puig y de Alfons Borrell, así como litografías de Miró en el salón y de Tàpies en la cocina.
Publicaciones | Revista AD - Architectural Digest España | Elle Decor: ES | IT




















