
Casa Jar | En construcción | Jarafuel, Valencia, España. | Diseñado por Nada. | En colaboración con Crux Arquitectos.
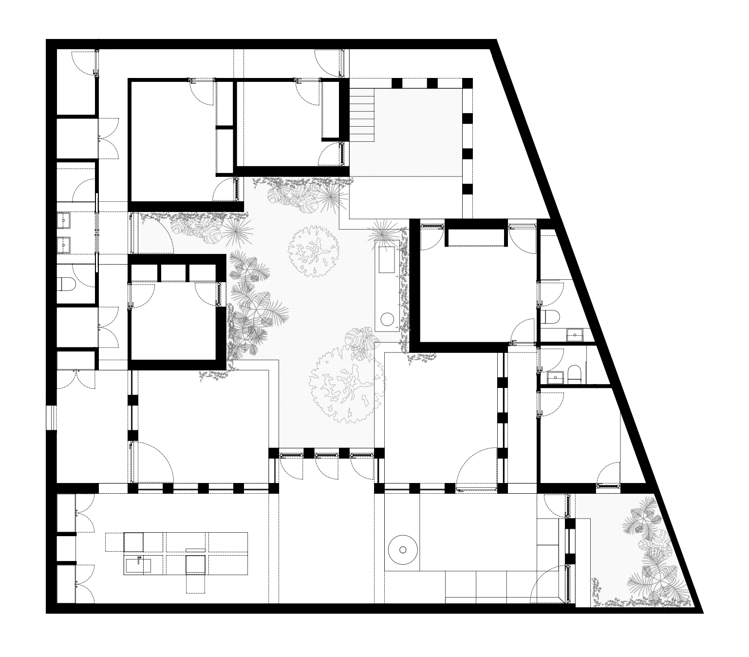
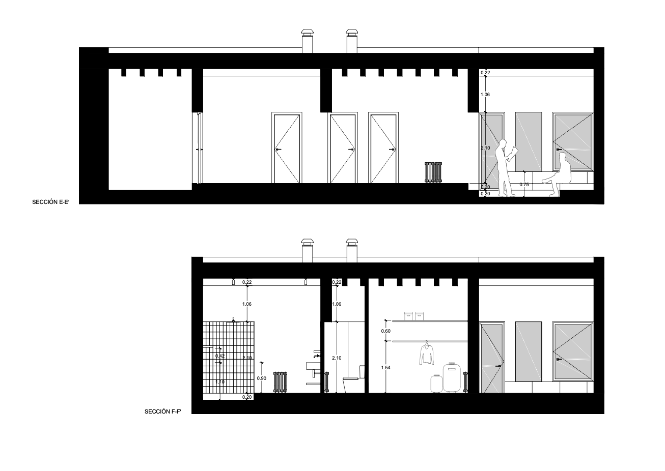
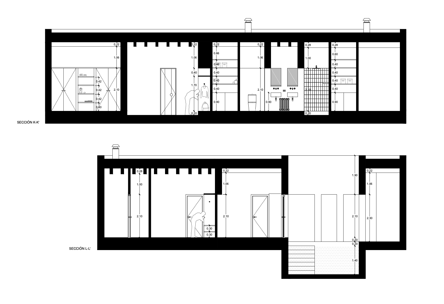
Una casa de pueblo distribuida en pabellones. | El punto de partida de este proyecto es un parking diáfano en estado de abandono. El programa indicado por el cliente nos exigía una casa de pueblo amplia que pudiese hospedar a diez personas. Para ello, el espacio se ha organizado en pabellones independientes que se conectan mediante una circulación concadenada. En el centro, un jardín con piscina que recuerda la estructura tradicional de las casas romanas. Un planteamiento innovador llevado a cabo con materiales tradicionales y autóctonos.










Casa Jar | En construcción | Jarafuel, Valencia, España. | Diseñado por Nada. | En colaboración con Crux Arquitectos.
Una casa de pueblo distribuida en pabellones. | El punto de partida de este proyecto es un parking diáfano en estado de abandono. El programa indicado por el cliente nos exigía una casa de pueblo amplia que pudiese hospedar a diez personas. Para ello, el espacio se ha organizado en pabellones independientes que se conectan mediante una circulación concadenada. En el centro, un jardín con piscina que recuerda la estructura tradicional de las casas romanas. Un planteamiento innovador llevado a cabo con materiales tradicionales y autóctonos.









