
El Apartamiento | En construcción | Torredembarra, Tarragona, España. | Diseñado por Nada.
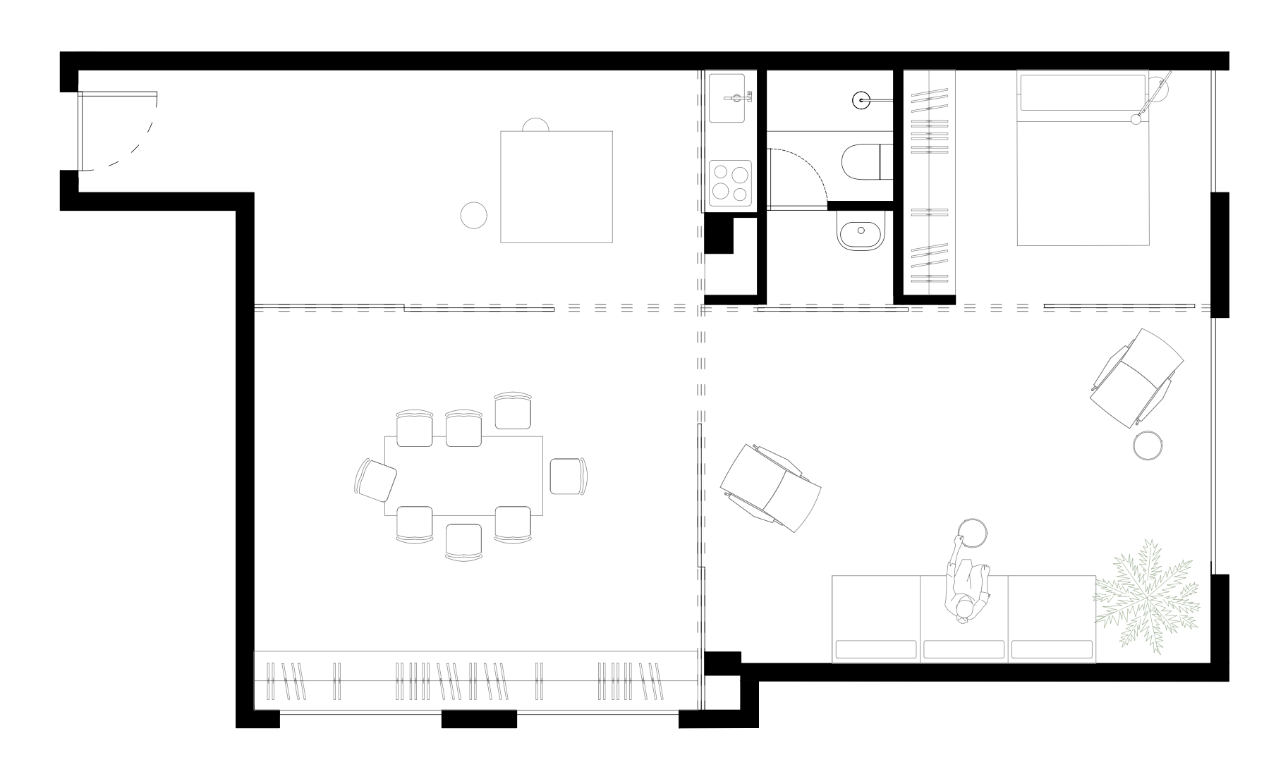
Un lugar para apartarse, para meditar y para socializar. | El Apartamiento nace de un local contiguo a la vivienda de la propiedad. Su intención es tener un espacio polivalente cercano donde poder celebrar eventos sociales y en familia, tener reuniones, o simplemente para relajarse. El estado actual es un local en primera planta totalmente diáfano. El eje proyectual se centra en ofrecer la máxima flexibilidad del espacio, construyendo tan sólo un cubo central con las zonas de aguas y liberando el resto del espacio. Paneles móviles de madera permitirán abrir y cerrar espacios según las necesidades.





El Apartamiento | En construcción | Torredembarra, Tarragona, España. | Diseñado por Nada.
Un lugar para apartarse, para meditar y para socializar. | El Apartamiento nace de un local contiguo a la vivienda de la propiedad. Su intención es tener un espacio polivalente cercano donde poder celebrar eventos sociales y en familia, tener reuniones, o simplemente para relajarse. El estado actual es un local en primera planta totalmente diáfano. El eje proyectual se centra en ofrecer la máxima flexibilidad del espacio, construyendo tan sólo un cubo central con las zonas de aguas y liberando el resto del espacio. Paneles móviles de madera permitirán abrir y cerrar espacios según las necesidades.




