
La casita de la playa | Puçol Platja, Valencia. 2018 | Diseñado por Nada. | En colaboración con Edu Covelo.
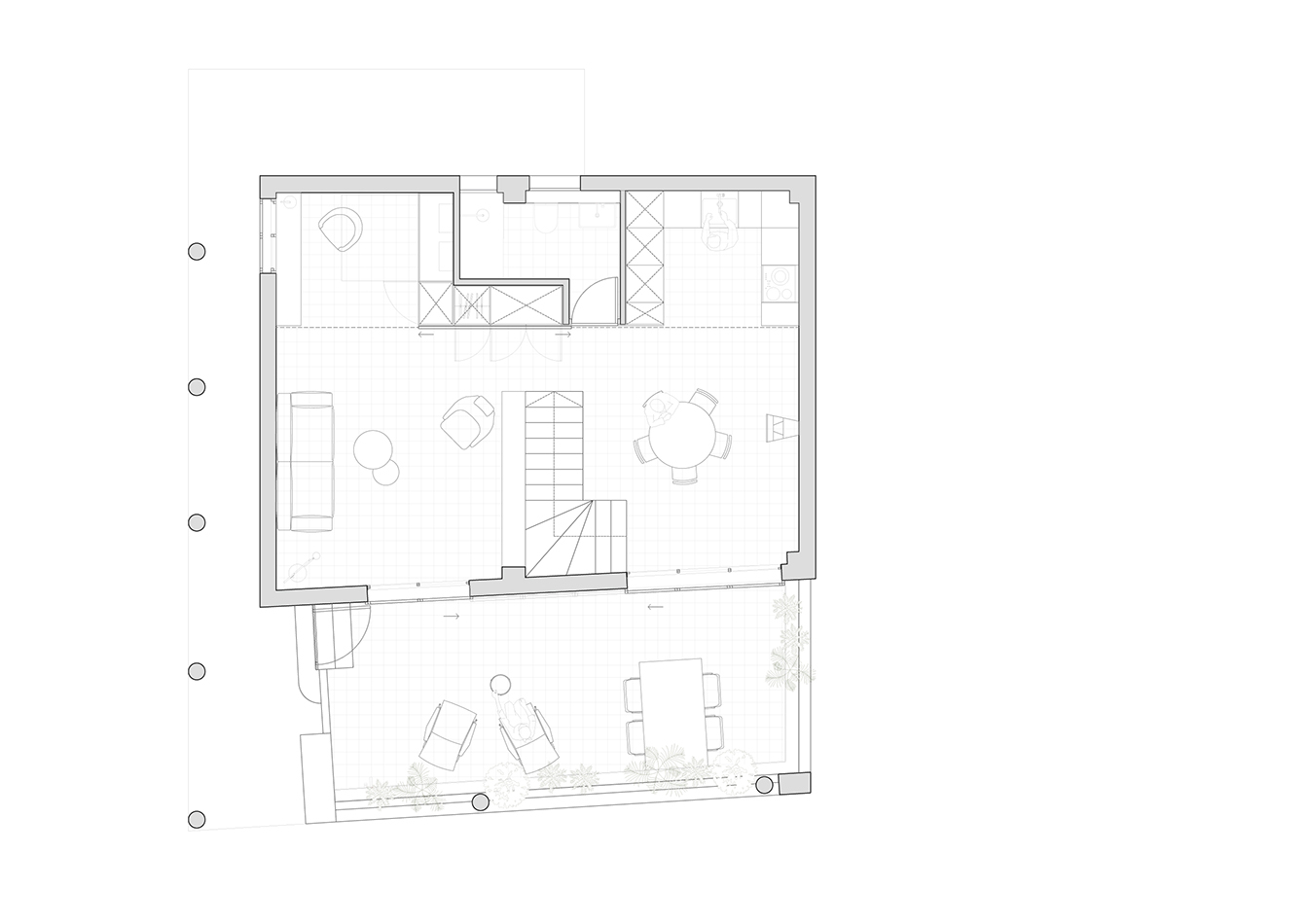
Reforma integral de una casa de playa. | La vivienda forma parte de una pequeña comunidad de vecinos en segunda línea de mar. Su estado actual es muy compartimentado, con acabados y materiales poco consistentes y anticuados. El objetivo principal de la intervención es modernizar y actualizar la vivienda abriéndola al exterior y ampliando los espacios interiores. Para ello, se ha redistribuido la planta baja deslizando el salón-comedor por toda la línea de fachada y conectándolo con el porche exterior. En esta nueva distribución, la cocina, el baño y la habitación de invitados se han trasladado a la parte trasera de la casa para liberar el resto del espacio para actividades más diurnas, relacionadas con el entorno vacacional en el que nos encontramos. Para enfatizar esta conexión entre el interior y el exterior, se creará una nueva abertura en la fachada. En la planta baja hay un gran salón-comedor conectado por dos puertas de cristal al porche; una habitación de invitados que puede unirse al salón como estudio; una generosa zona de almacenamiento; un baño completo con ducha y una funcional cocina abierta al salón. La columna vertebral de estos cuatro espacios está fuertemente caracterizada por una enorme puerta corredera que, según su posición, puede cerrar la habitación de invitados, la cocina o simplemente quedar oculta. En cuanto a los materiales, destacan las carpinterías y paredes blancas y el pavimento de color arena que une el interior con el exterior, recordando la arena de la playa cercana. La chapa perforada tras la que se esconde la escalera en el centro del espacio permite el paso de la luz, creando sugerentes sombras.






La casita de la playa | Puçol Platja, Valencia. 2018 | Diseñado por Nada. | En colaboración con Edu Covelo.
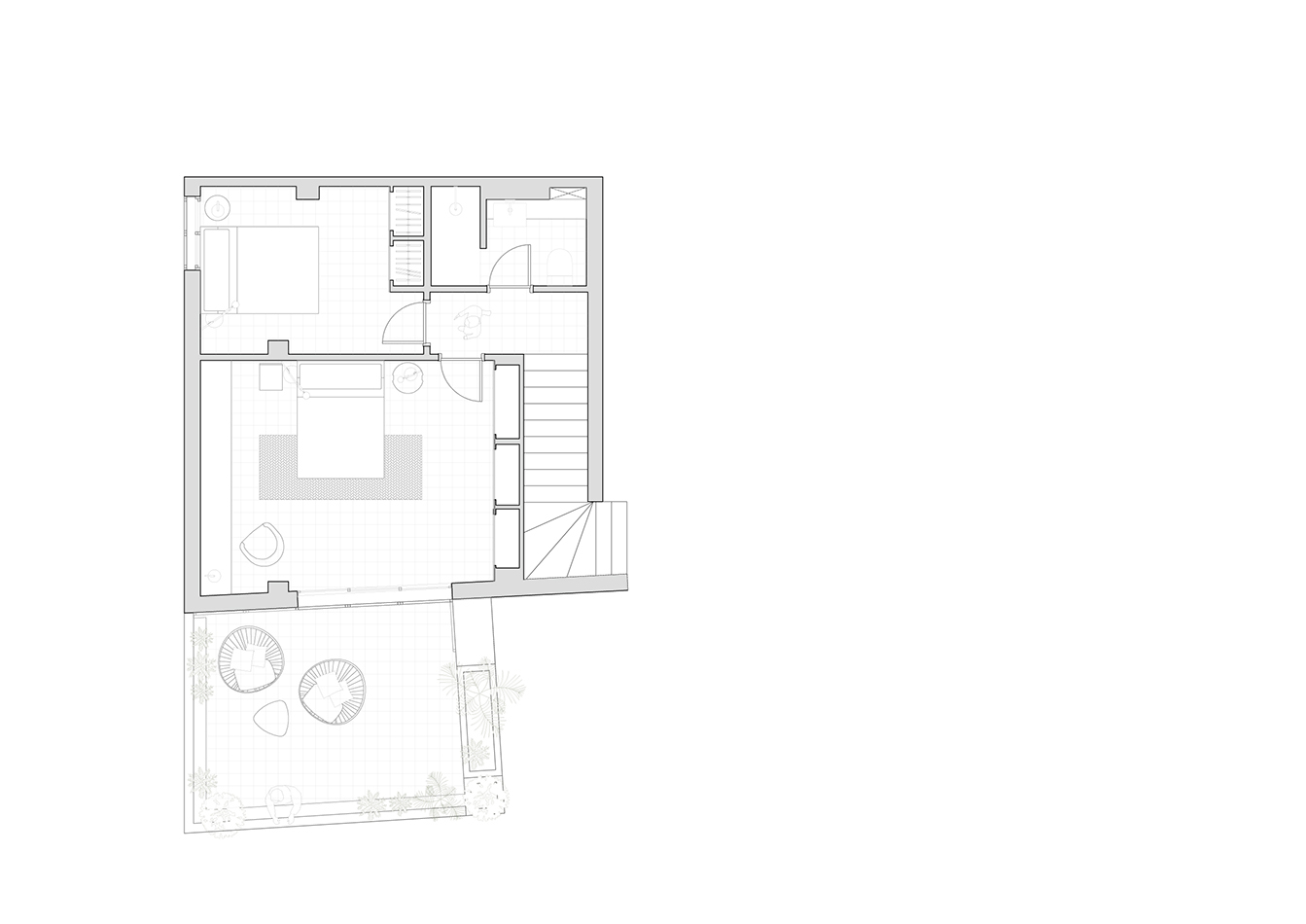
Reforma integral de una casa de playa. | La vivienda forma parte de una pequeña comunidad de vecinos en segunda línea de mar. Su estado actual es muy compartimentado, con acabados y materiales poco consistentes y anticuados. El objetivo principal de la intervención es modernizar y actualizar la vivienda abriéndola al exterior y ampliando los espacios interiores. Para ello, se ha redistribuido la planta baja deslizando el salón-comedor por toda la línea de fachada y conectándolo con el porche exterior. En esta nueva distribución, la cocina, el baño y la habitación de invitados se han trasladado a la parte trasera de la casa para liberar el resto del espacio para actividades más diurnas, relacionadas con el entorno vacacional en el que nos encontramos. Para enfatizar esta conexión entre el interior y el exterior, se creará una nueva abertura en la fachada. En la planta baja hay un gran salón-comedor conectado por dos puertas de cristal al porche; una habitación de invitados que puede unirse al salón como estudio; una generosa zona de almacenamiento; un baño completo con ducha y una funcional cocina abierta al salón. La columna vertebral de estos cuatro espacios está fuertemente caracterizada por una enorme puerta corredera que, según su posición, puede cerrar la habitación de invitados, la cocina o simplemente quedar oculta. En cuanto a los materiales, destacan las carpinterías y paredes blancas y el pavimento de color arena que une el interior con el exterior, recordando la arena de la playa cercana. La chapa perforada tras la que se esconde la escalera en el centro del espacio permite el paso de la luz, creando sugerentes sombras.





