
La Marsalada | Platja de Puçol, Valencia. 2021 | Superficie: 629 m2 (6770 ft2) | Diseñado por Nada. | Fotografiado por Daniel Rueda.
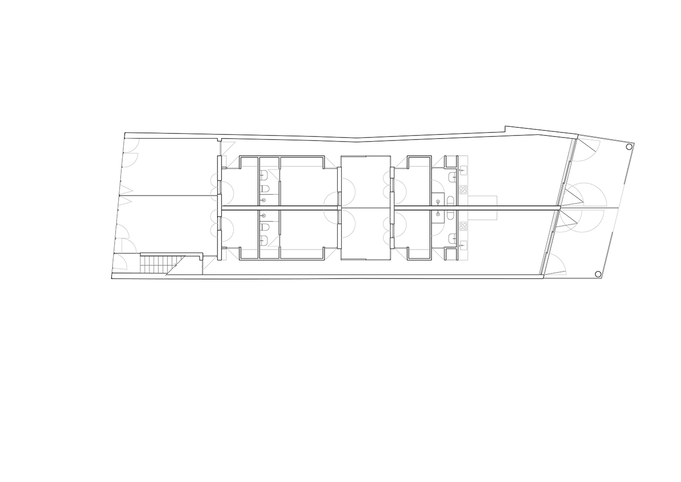
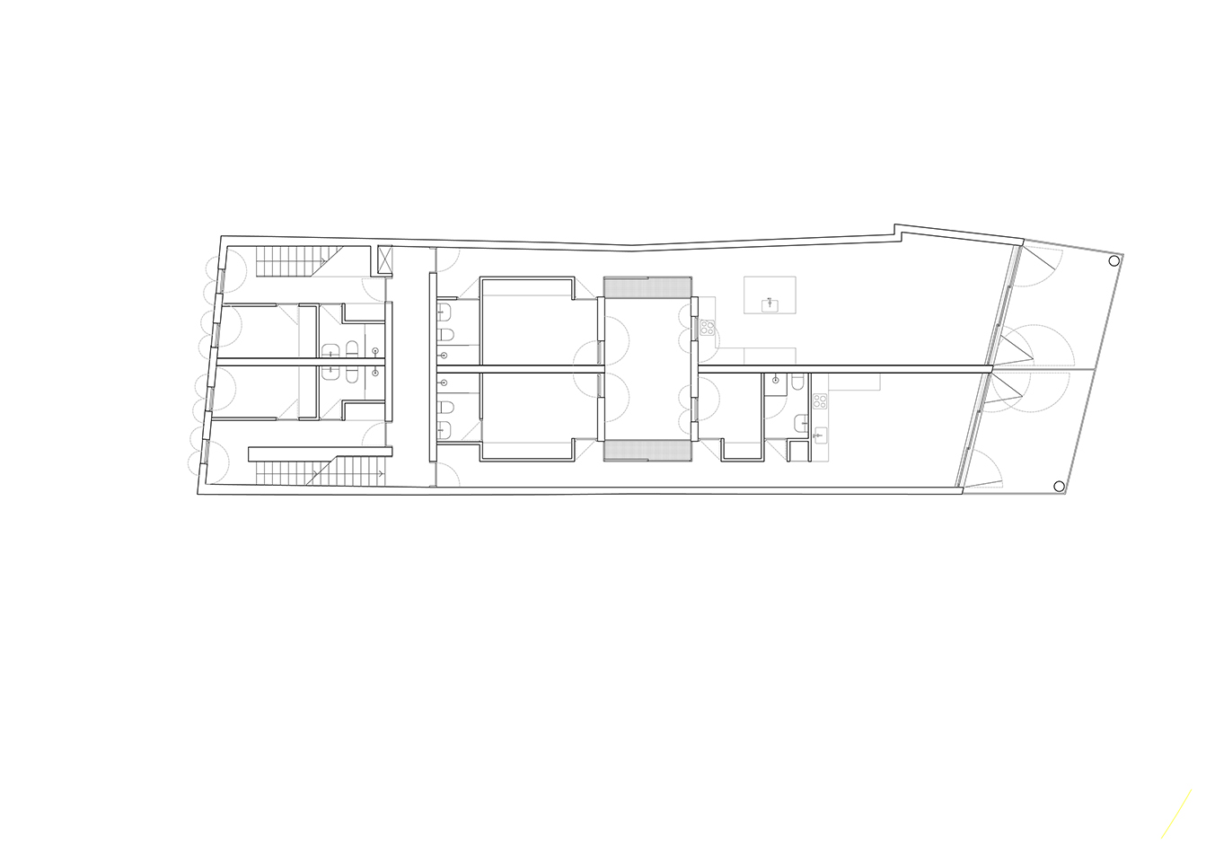
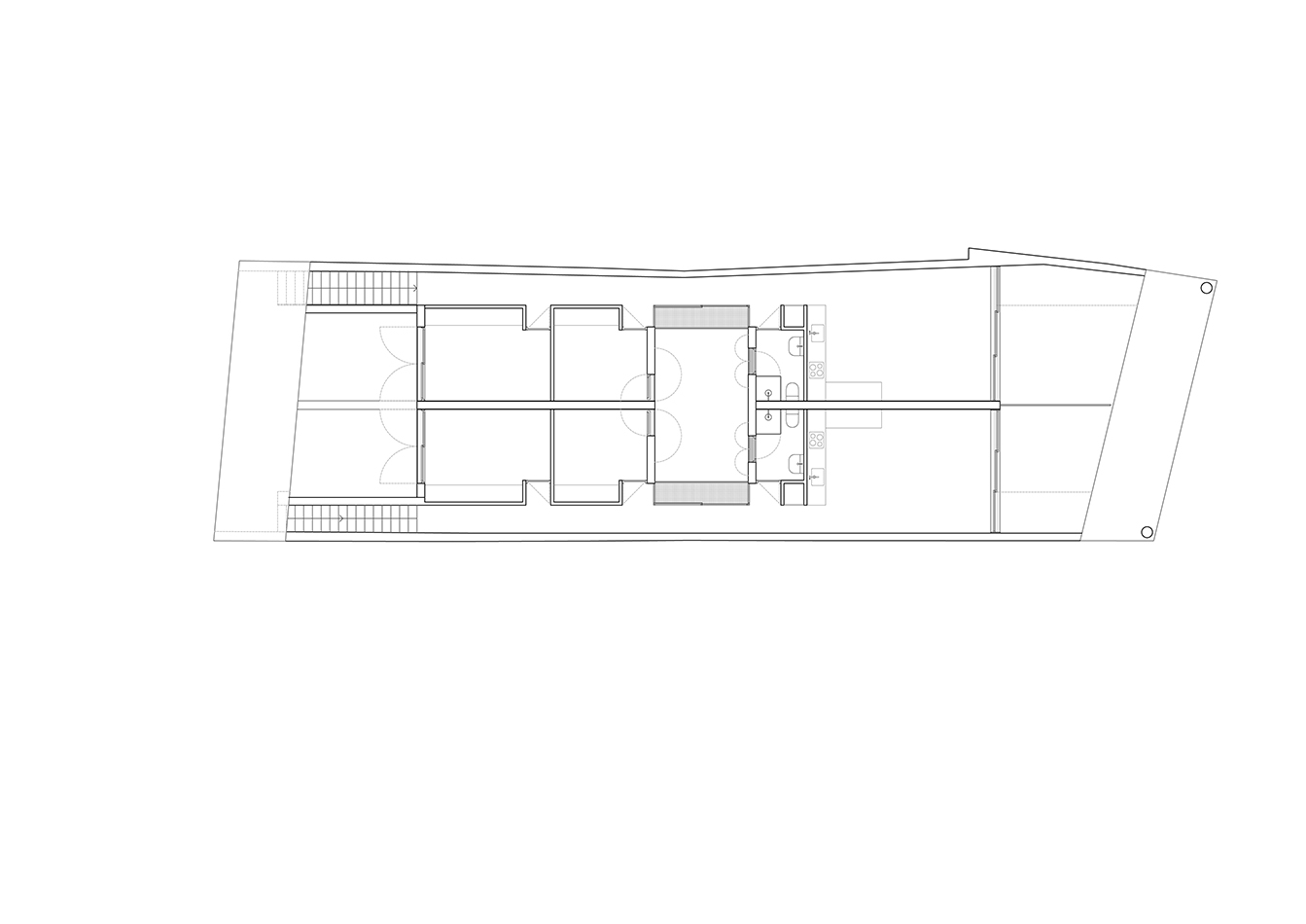
Una promoción residencial junto a la playa. | La Marsalada es una promoción residencial de seis apartamentos construida en tres niveles en el paseo marítimo de Puçol (Valencia, España). Todos ellos tienen acceso a terrazas en primera línea de playa y vistas al pueblo. Todas las viviendas se estructuran en torno a un gran patio central que sirve de núcleo, entrada de luz natural y punto de encuentro de los vecinos. De este modo, cada uno de los apartamentos disfruta de luz natural durante todas las horas del día, pudiendo observar los cambios de color desde el amanecer sobre el mar hasta el rojo atardecer. La Marsalada se encuentra en un entorno privilegiado con buen clima durante todo el año. Por ello, la conexión interior-exterior ha sido uno de los ejes principales a la hora de planificar el proyecto. Hemos priorizado el disfrute de los espacios exteriores, el aprovechamiento de la luz natural y la ventilación cruzada. El resultado son unos interiores completamente conectados con su entorno. En las terrazas se visualiza el infinito del mar, mientras que en el patio vecinal se disfruta de un exterior más controlado e íntimo. En la planta baja hay dos apartamentos con aparcamiento y terrazas a pie de playa. En la primera planta hay cuatro apartamentos: dos de dimensiones similares y otros dos cuya entrada está en la primera planta, aunque la mayor parte de la vivienda está en la segunda planta. Todas ellas cuentan con 2 o 3 dormitorios, 2 baños, trastero, amplias terrazas y salidas al patio central, que genera interacción vecinal y celebra la idiosincrasia mediterránea. Los materiales son una reminiscencia de la playa. La serenidad del mar fluye hacia el interior mediante el uso de pocos materiales y grandes espacios inundados de luz natural. El color blanco de los paramentos verticales transporta la luz natural por todas las estancias de los apartamentos. El pavimento de color arena nos conecta con la playa y hace que ésta inunde los interiores.




















Publicaciones | Archello: EN | ES | Diseño Interior | TAU Cerámica
La Marsalada | Platja de Puçol, Valencia. 2021 | Superficie: 629 m2 (6770 ft2) | Diseñado por Nada. | Fotografiado por Daniel Rueda.
Una promoción residencial junto a la playa. | La Marsalada es una promoción residencial de seis apartamentos construida en tres niveles en el paseo marítimo de Puçol (Valencia, España). Todos ellos tienen acceso a terrazas en primera línea de playa y vistas al pueblo. Todas las viviendas se estructuran en torno a un gran patio central que sirve de núcleo, entrada de luz natural y punto de encuentro de los vecinos. De este modo, cada uno de los apartamentos disfruta de luz natural durante todas las horas del día, pudiendo observar los cambios de color desde el amanecer sobre el mar hasta el rojo atardecer. La Marsalada se encuentra en un entorno privilegiado con buen clima durante todo el año. Por ello, la conexión interior-exterior ha sido uno de los ejes principales a la hora de planificar el proyecto. Hemos priorizado el disfrute de los espacios exteriores, el aprovechamiento de la luz natural y la ventilación cruzada. El resultado son unos interiores completamente conectados con su entorno. En las terrazas se visualiza el infinito del mar, mientras que en el patio vecinal se disfruta de un exterior más controlado e íntimo. En la planta baja hay dos apartamentos con aparcamiento y terrazas a pie de playa. En la primera planta hay cuatro apartamentos: dos de dimensiones similares y otros dos cuya entrada está en la primera planta, aunque la mayor parte de la vivienda está en la segunda planta. Todas ellas cuentan con 2 o 3 dormitorios, 2 baños, trastero, amplias terrazas y salidas al patio central, que genera interacción vecinal y celebra la idiosincrasia mediterránea. Los materiales son una reminiscencia de la playa. La serenidad del mar fluye hacia el interior mediante el uso de pocos materiales y grandes espacios inundados de luz natural. El color blanco de los paramentos verticales transporta la luz natural por todas las estancias de los apartamentos. El pavimento de color arena nos conecta con la playa y hace que ésta inunde los interiores.
Publicaciones | Archello: EN | ES | Diseño Interior



















