
Loft 01 | Valencia. 2018 | Superficie: 80 m2 (861 ft2) | Diseñado por Nada. | Fotografiado por Daniel Rueda. | Mención de Honor en Bulthaup Iberia Award 2018.
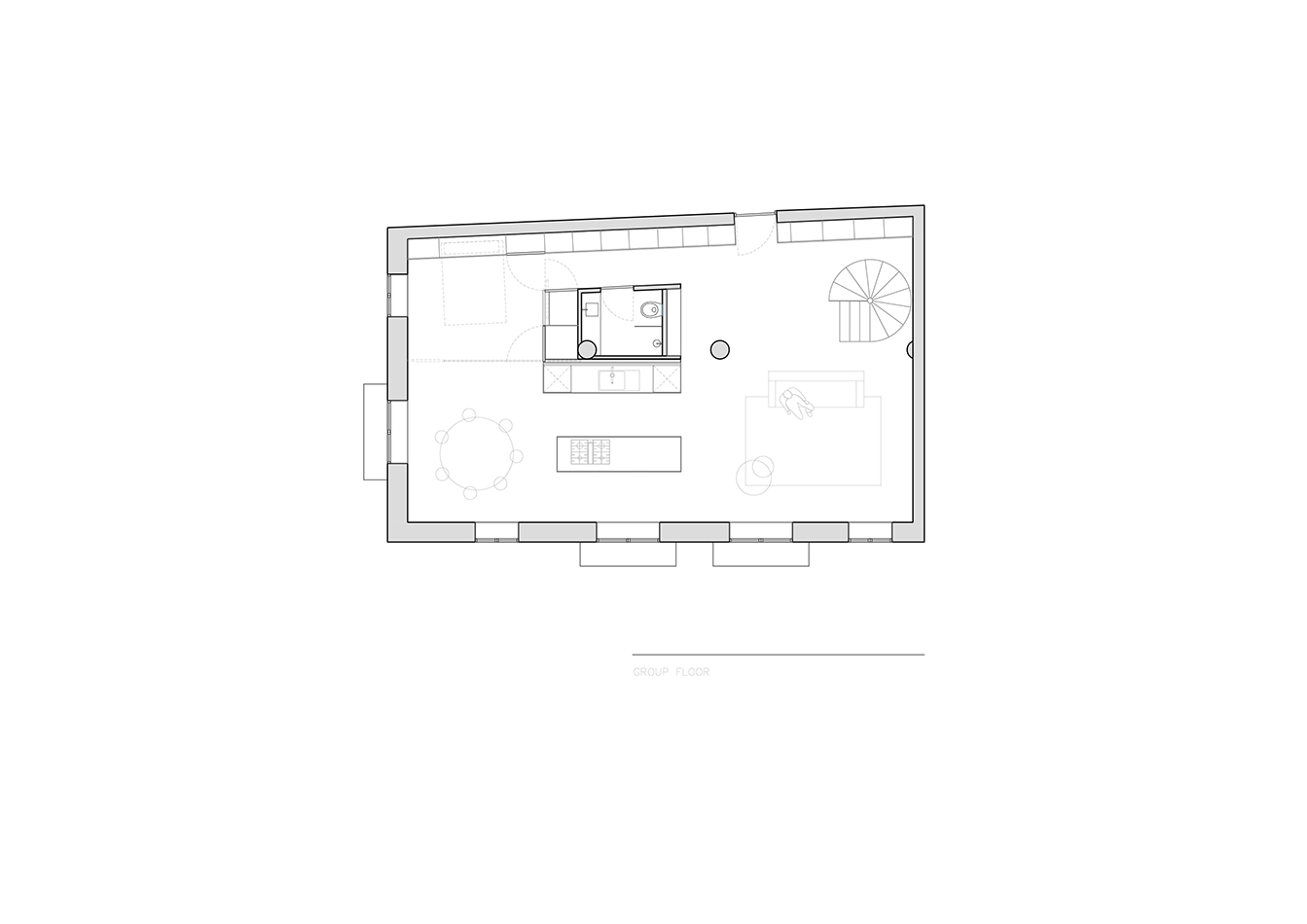
Un cubo flexible define los espacios en el loft de dos pisos. | El Loft 01 se ha diseñado para un joven profesional soltero. Concebido como un concepto abierto y flexible, el loft se divide en dos plantas donde la luz natural interconecta los múltiples espacios. Un cubo central ha sido concebido como el elemento clave del diseño, integrando todos los servicios dentro. Incluye la cocina, el baño, la lavandería y el almacenamiento. Este cubo central cuenta además con un sistema de plegado de puertas integrado que permite generar espacios que aparecen y desaparecen respondiendo a las diferentes necesidades y usos del loft. El acceso principal se realiza a través de un mueble que funciona como un muro grueso y que integra las instalaciones y el almacenamiento en su interior. La primera planta contiene el dormitorio principal, un baño y un vestidor. Se accede a ella a través de una ligera escalera circular y se ha concebido como un espacio abierto e integrado con la planta principal. No obstante, puede regularse el nivel de intimidad mediante una suave separación acortinada. El muro de carga de la fachada y los huecos se han conservado en su estado original durante el proceso de remodelación como homenaje a su pasado mediterráneo.















Publicaciones | 88DesignBox | AECCafé | Archilovers | Architonic: EN | ES | IT | FR | DE | Arkitera | Bulthaup: EN | ES | Casa Viva | Conseils Decó | Detailers Simon | Domus | Dwell | Dwell Home Tours | Dis-up! | Interiors Korea: Online | Print | Interiores Minimalistas | Interiorzine | Mocoloco | More with Less: EN | ES | Open House Valencia | Pocket | Magazine | Seoul Design Foundation
Loft 01 | Valencia. 2018 | Superficie: 80 m2 (861 ft2) | Diseñado por Nada. | Fotografiado por Daniel Rueda. | Mención de Honor en Bulthaup Iberia Award 2018.
Un cubo flexible define los espacios en el loft de dos pisos. | El Loft 01 se ha diseñado para un joven profesional soltero. Concebido como un concepto abierto y flexible, el loft se divide en dos plantas donde la luz natural interconecta los múltiples espacios. Un cubo central ha sido concebido como el elemento clave del diseño, integrando todos los servicios dentro. Incluye la cocina, el baño, la lavandería y el almacenamiento. Este cubo central cuenta además con un sistema de plegado de puertas integrado que permite generar espacios que aparecen y desaparecen respondiendo a las diferentes necesidades y usos del loft. El acceso principal se realiza a través de un mueble que funciona como un muro grueso y que integra las instalaciones y el almacenamiento en su interior. La primera planta contiene el dormitorio principal, un baño y un vestidor. Se accede a ella a través de una ligera escalera circular y se ha concebido como un espacio abierto e integrado con la planta principal. No obstante, puede regularse el nivel de intimidad mediante una suave separación acortinada. El muro de carga de la fachada y los huecos se han conservado en su estado original durante el proceso de remodelación como homenaje a su pasado mediterráneo.
Publicaciones | 88DesignBox | AECCafé | Archilovers | Architonic: EN | ES | IT | FR | DE | Arkitera | Bulthaup: EN | ES | Casa Viva | Conseils Decó | Detailers Simon | Domus | Dwell | Dwell Home Tours | Dis-up! | Interiors Korea: Online | Print | Interiores Minimalistas | Interiorzine | Mocoloco | More with Less: EN | ES | Open House Valencia | Pocket | Magazine | Seoul Design Foundation














