
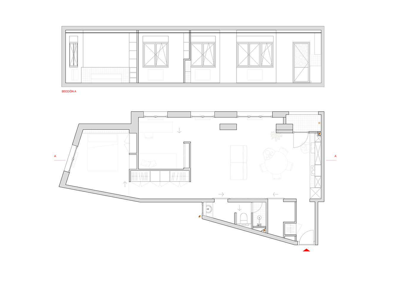
Apartamento Picasso | El Born, Barcelona. 2019 | Area: 70 m2 (754 ft2) | Designed by Nada. | In collaboration with Edu Covelo. | Photographed by Nit Victorio. | German Design Award 2021 nominee.













Press | AECCafé | Archello: EN | ES | IT | PT | Archidea | Archilovers | Architecture Design | Architonic: EN | ES | IT | FR | DE | Arquitectura y Diseño | Designboom | Dwell | DHC Ukraine | Elle Decor | FreeCadWorld | Habita Inmueble | Homify | Houser | Houzz | Interiores | Interiores Minimalistas | More with Less | Pocket Magazine | Singulares | Magazine | Tambour | Urdesign | Zainteriora
Apartamento Picasso | El Born, Barcelona. 2019 | Area: 70 m2 (754 ft2) | Designed by Nada. | In collaboration with Edu Covelo. | Photographed by Nit Victorio. | German Design Award 2021 nominee.
Press | AECCafé | Archello: EN | ES | IT | PT | Archidea | Archilovers | Architecture Design | Architonic: EN | ES | IT | FR | DE | Arquitectura y Diseño | Designboom | Dwell | DHC Ukraine | Elle Decor | FreeCadWorld | Habita Inmueble | Homify | Houser | Houzz | Interiores | Interiores Minimalistas | More with Less | Pocket Magazine | Singulares | Magazine | Tambour | Urdesign | Zainteriora












