
RLC Sabadell | En construcción | Sabadell, Barcelona, España. | Diseñado por Nada.
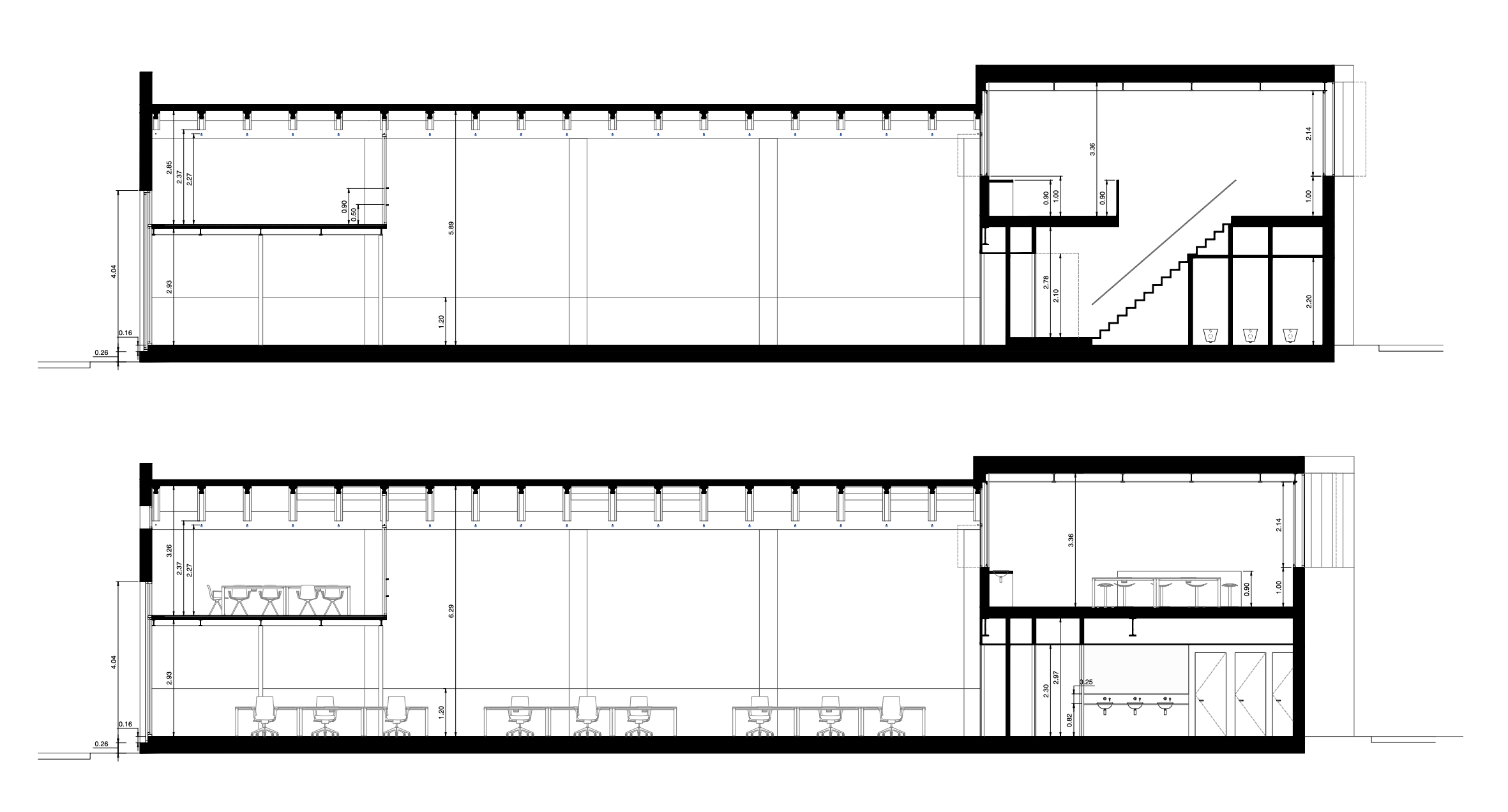
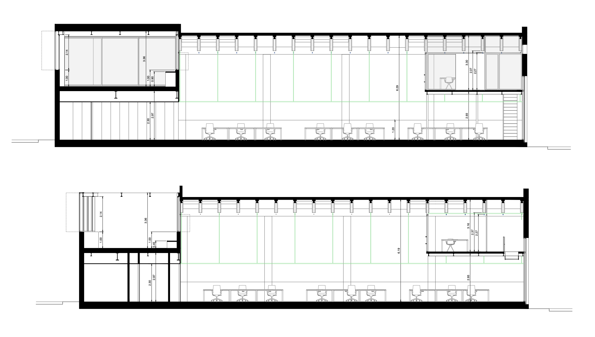
Rehabilitación de una antigua nave industrial para la sede del RLC en Sabadell. | El punto de partida se trata de una gran nave situada en una zona industrial de la ciudad. El espacio está articulado en dos volúmenes: el principal y más grande con una cubierta abovedada y uno posterior adosado a éste con un lenguaje totalmente diferenciado. Nuestra intervención acentúa aún más esta diferencia. Para ello, en el volumen más reciente, que contiene la fachada principal, se sitúa la recepción, los servicios y en el segundo nivel la zona para los trabajadores y una gran terraza. En la nave abovedada, más antigua, se proyecta un gran espacio de trabajo configurado como open-space. Además, se ha añadido un altillo nuevo para albergar oficinas y salas de reuniones. El tratamiento del espacio y de los materiales es fiel su pasado industrial. Se ha incidido en el ahorro energético mediante la instalación de placas solares y soluciones de eficiencia energética. Las fachadas se han tratado con una doble piel, la cual permite graduar la incidencia solar y aporta ventilación durante todo el año. El espacio estará destinado a albergar la nueva sede de la empresa de transportes RLC en la provincia de Barcelona.











RLC Sabadell | En construcción | Sabadell, Barcelona, España. | Diseñado por Nada.
Rehabilitación de una antigua nave industrial para la sede del RLC en Sabadell. | El punto de partida se trata de una gran nave situada en una zona industrial de la ciudad. El espacio está articulado en dos volúmenes: el principal y más grande con una cubierta abovedada y uno posterior adosado a éste con un lenguaje totalmente diferenciado. Nuestra intervención acentúa aún más esta diferencia. Para ello, en el volumen más reciente, que contiene la fachada principal, se sitúa la recepción, los servicios y en el segundo nivel la zona para los trabajadores y una gran terraza. En la nave abovedada, más antigua, se proyecta un gran espacio de trabajo configurado como open-space. Además, se ha añadido un altillo nuevo para albergar oficinas y salas de reuniones. El tratamiento del espacio y de los materiales es fiel su pasado industrial. Se ha incidido en el ahorro energético mediante la instalación de placas solares y soluciones de eficiencia energética. Las fachadas se han tratado con una doble piel, la cual permite graduar la incidencia solar y aporta ventilación durante todo el año. El espacio estará destinado a albergar la nueva sede de la empresa de transportes RLC en la provincia de Barcelona.










